Maison Lille - 358 500 €
Vue d'ensemble
| Référence | GSA540 |
|---|---|
| Prix | 358 500 € |
| Transaction | Vente |
| Type de bien | Maison |
| Ville | Lille (59000) |
| Surf. hab. | 121 m² |
| Chambre(s) | 4 |
| Salle(s) de bain | 2 |
| Stationnement(s) | 1 |
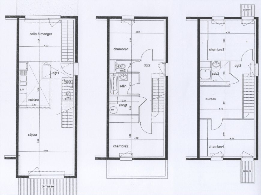
MAISON DE 121M2 AVEC JARDIN ET GARAGE SUR LILLE CENTRE - BOIS HABITE
MAISON DE 121M2 AVEC JARDIN ET GARAGE SUR LILLE CENTRE - BOIS HABITE
Venez découvrir cette maison de 121m2 située au Bois Habité dans une copropriété de 2007 comprenant un séjour, une salle à manger, une cuisine ouverte, 4 chambres dont 2 avec balcon, un espace bureau ouvert, 2 salles de bains, 2 wc, un jardin d'environ 60m2 avec terrasse et un garage sous-sol attenant.
Environnement verdoyant, calme et sans voiture.
A proximité des écoles, des commerces, du métro Lille Grand Palais, des gares et des axes autoroutiers.
Copropriété : 22 lots d'habitation - 1 225 € de charges annuelles
Honoraires d'agence de 13 500 € TTC charge acquéreur - Prix de vente hors honoraires : 345 000 €
Les informations sur les risques auxquels ce bien est exposé sont disponibles sur le site Géorisques : www.georisques.gouv.fr
Vous pouvez contacter votre conseiller Benoit Desmarets - Agent commercial - Immatriculé au RSAC de LILLE sous le numéro 2019AC00175
- Prix de vente honoraires inclus : 358 500 € FAI
- Prix hors honoraires : 345 000 €
- Taxe foncière : 1733 €
- Montant des charges : 105 €
- Montant des honoraires : 13500 €
- Taux honoraires : 3 %
Informations financières :
Contactez nous
Téléphone : 06 75 95 20 92
